隨著經濟的高速發展,各種建筑輔助設施越來越繁雜且龐大,有時候就不得不對原有結構進行改造開洞,但開洞區不進行加固處理,則開洞區就會變成薄弱區,但房梁被開洞就需要加固嗎?這還真要看實際情況才能確定!

有時在室內需要安裝中央空調或者其他設備時,由于安裝位置特殊施工人員需要在房梁進行開洞,懂得建筑結構的師傅會找正確位置,但是也有一些不懂的隨便開洞導致出現安全隱患;還有的就是梁上開洞打到鋼筋了,又心里打鼓,害怕梁會不會斷掉。

那么遇到這種情況該如何進行處理呢?在發生這種情況以后,首先要確定在開洞過程中是否打斷主鋼筋。
1、沒有打斷主筋,只是打斷個別箍筋,并且開洞較小,可以不進行加固處理;
2、打斷部分主筋,可以采用粘貼碳纖維布或者粘貼鋼板進行加固;
3、將所有鋼筋全部打斷,這種情況就比較危險了,由于下部鋼筋主要起到抗彎作用。在這種情況下增大截面加固是比較合適的,具體的配筋受力計算要找專業的設計單位進行計算。
一般來說我們所談到的開洞梁大多數都為普通鋼筋混凝土開洞梁,且開洞后鋼筋混凝土梁的剛度被削弱,使梁的撓度增大,以及開洞部位出現應力集中,使得梁的抗裂性降低,就有可能過早的發生斜截面受剪破壞或者受彎破壞。

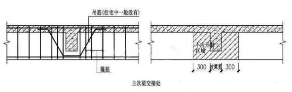
梁上開洞的總體原則和要求1)盡量開在梁跨中(跨中1/3)的位置,絕不應該開在梁端位置;
2)不要在主次梁交接處附近開洞;
3)洞口下緣應至少距梁底10公分以上,以免損傷或打斷梁底鋼筋;(只針對住宅樓梁,如果碰到跨度大,截面大的梁,應距離更遠)

4)洞口距離梁上邊緣,或者距板底也應該有一定距離,但由于有樓板的緣故,且由于取芯機操作空間的原因,這一條容易滿足;5)梁開洞盡量避免損傷鋼筋。

1)洞口開在梁端時,且洞口孔徑不大,未損傷箍筋的。可以在洞口內敷設開洞大小相同的鋼套管,套管與洞內側采取加壓注漿。從而鋼套管起到防止洞口內側應力集中造成的撕裂。2) 洞口開在梁端,且洞口較大,或者已打斷箍筋的,除用灌漿料修復外,應在洞口兩側粘貼幾道U形碳布箍。必要時,也可以采取粘貼U形鋼板加固。

3) 洞口開在主次梁交接處附近的,可參照第1、2條修復加固
4) 洞口開在梁跨中合理區段,但由于距梁底過近,損傷或者打斷梁底鋼筋的。對于輕微損傷的,首先應參照第1條修復,然后在梁底粘貼碳布或者鋼板進行加固。對于中重度損傷的或者鋼筋已經斷掉的,應采取加大截面進行加固。

梁底筋被打斷的,還有一種方法就是鑿開此處的混凝土,保留鋼筋骨架,然后對受損的鋼筋進行雙綁條焊接連接,灌漿料修復后,再在梁底全部粘貼碳布或者鋼板進行加固。
梁上開洞是一件非常謹慎的事情,要根據實際情況來決定的。在梁上開洞時,需要對梁的結構有一定的了解,才能進行開洞,遇到一些需要開洞的情況最好找專業人員來進行檢測判斷,并且及時做好相關的加固措施,選擇適當的加固技術與優質安全的加固材料,才能從長遠保障結構安全。